Получите полную презентацию поселка

Дом, 810 м2

Цена: 295 000 000 руб.
Код объекта: 254-612

Заезжай и живи!

Новая усадьба вашей мечты 562 кв.м под ключ на шикарном участке 44 сотки с ландшафтным дизайном на берегу реки Десна в обжитом охраняемом коттеджном поселке Староникольское. В отделке дома использованы премиальные материалы, панорамное остекление, высокие потолки, оборудован центр управления системой "Умный дом" с подключением к Алисе. Продуманная планировка: в доме 5 спален, одна из которых на первом этаже, просторные санузлы и гардеробные, каминный зал на первом этаже с зонами гостиной, кухни и столовой с выходом на крытую террасу, игровые и библиотека. Дом полностью обставлен дорогой качественной мебелью. На участке крытая беседка-барбекю с кухней, санузлом и шашлычной зоной на открытой веранде. К дому примыкает теплый гараж на 2 машиноместа с квартирой для персонала на втором этаже. Красивый участок со множеством цветущих растений имеет свой выход к прибрежной зоне реки Десна. Городская инфраструктура в шаговой доступности, остановка общественного транспорта около КПП поселка. Удобный выезд на 3 шоссе: Киевское, Минское, в т.ч. платная трасса до Москва-Сити, Боровское шоссе.

Общая площадь строений: 810 м2 (Дом 562 кв.м + Гараж 142 кв.м + Зона барбекю 105 кв.м)
Количество уровней: 3
Спален: 5. С/узлов полных: 4. С/узлов неполных: 1. Комнат всего: 7.
Опции: машиномест крытых: 2, в т.ч. в теплом гараже: 2; квартира для персонала; терраса; камин; панорамное остекление.
Материал стен: керамический кирпичный блок
Облицовка стен: бельгийский кирпич ручной формовки
Стадия готовности: меблирован
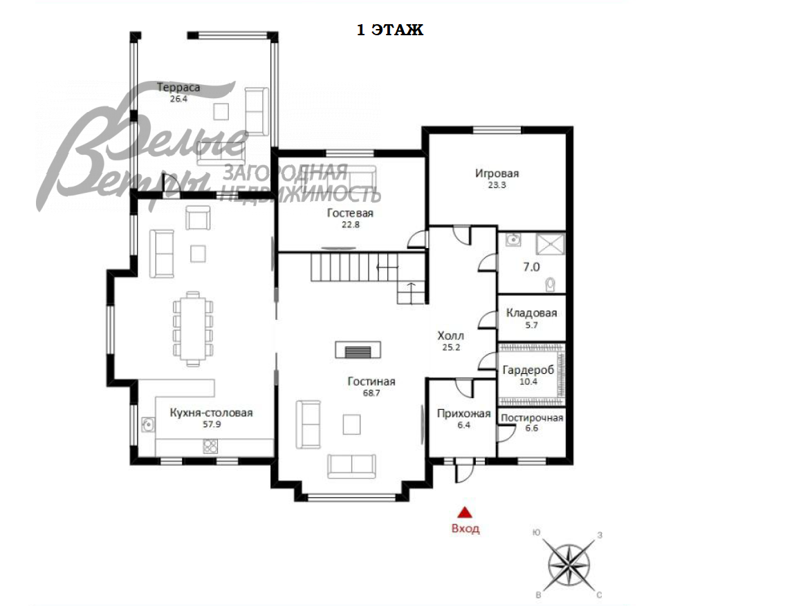
1-ый этаж: прихожая, гардеробная, постирочная, кладовая, игровая комната, спальня первого этажа, гостевой санузел, кухня, столовая зона с выходом на крытую террасу, гостиная с камином
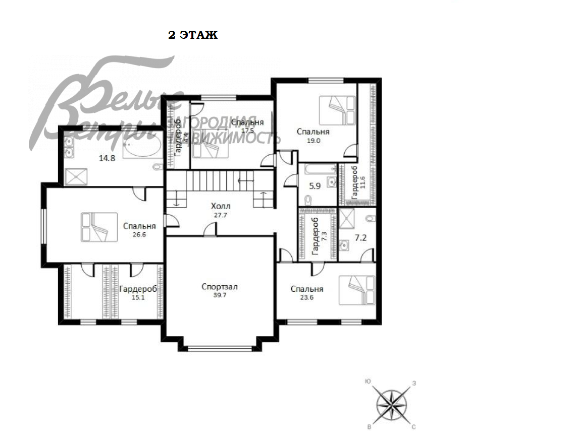
2-ой этаж: хозяйский блок с большой гардеробной и санузлом, спальный блок с двумя спальнями, с двумя гардеробными и санузлом, спальня с санузлом, спортзал/игровая, зона библиотеки
3-ий этаж: мансардный этаж - 245 кв.м с выведенными коммуникациями
Описание внутренней отделки: качественная отделка с использованием натуральных материалов: пол - массив дуба, теплый пол в зоне плитки, на 2-ом этаже - паркет. Лестница - массив дуба, шириной 1,3м. Двери- производство Белоруссия, массив толщиной 5 см и высотой 270 см.
Инженерное обеспечение: установлено 2 котла Waillant мощностью 70 и 48 кВт, бойлер 300 л. Две очистки воды на скважину и на центральное водоснабжение. Приточная вытяжная вентиляция, встроенная система увлажнения воздуха, канальное кондиционирование. Центр управления системой "Умный дом" с подключением к Алисе – электрические шторы, освещение, отопление, кондиционирование. Установлена система видеонаблюдения на улице и внутри дома. Охранная сигнализация с датчиками проникновения, пожарная сигнализация.
Мебель, оборудование: установлена немецкая кухня со встроенной техникой Kuppersbusch, с вытяжкой Marte Pro c вентиляцией на крыше, столешница - кварцевый агломерат, два холодильника Liebherr.
Дополнительные строения: - Зона барбекю 105 кв.м – шашлычная зона, зона отдыха, кухня, с/у. В помещении кондиционирование, панорамное остекление с механизмом полного открывания.
- Гараж 142 кв.м: 1-ый этаж – теплый гараж на 2 машиноместа, вентиляционная комната, котельная;
2-ой этаж – квартира для персонала 74 кв.м: прихожая, кухня-гостиная, санузел, две спальни.
- Уличная зона барбекю – 30 кв.м
- Хозблок – 12 кв.м
Дополнительная информация о доме: высота потолка на 1-ом этаже - 3.4м -3.7м, 2 этаж - 3.1 м, мансардный этаж - 2.5 кв.м

Участок

Площадь участка, соток: 44 (30 соток в собственности, 14 соток прибрежная зона с выходом к реке)
Тип участка: с ландшафтом и взрослыми деревьями
Благоустройство участка: выполнен ландшафтный дизайн, на участке взрослые хвойные и плодовые деревья, розарий, оборудован автополив, газовый генератор 14 кВт, освещение дома и участка, выложена клинкерная брусчатка (производство Германии).


Фото


Планировки